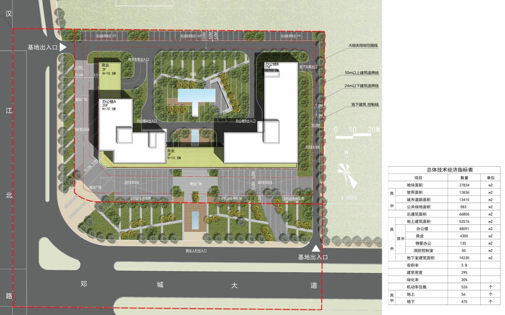
本项目位于高新区汉江北路与邓城大道交叉口,邓城大道以北,汉江北路以东,西为国际创新产业中心,西南为襄阳市第五中学,北为已建成乐活城项目。因此,项目定位以学校及办公生活圈为主,提供满足学生生活和办公创业等需求的产品。裙房部分可提供多种功能使用的可能性,并通过庭院组织和打造出年轻态的城市客厅空间,通过广场,街巷,外摆,平台等要素打造高新区内的新活力商办综合体,带动片区品质的提升和整体的发展。
本项目位于高新区汉江北路与邓城大道交叉口,邓城大道以北,汉江北路以东,西为国际创新产业中心,西南为襄阳市第五中学,北为已建成乐活城项目。因此,项目定位以学校及办公生活圈为主,提供满足学生生活和办公创业等需求的产品。裙房部分可提供多种功能使用的可能性,并通过庭院组织和打造出年轻态的城市客厅空间,通过广场,街巷,外摆,平台等要素打造高新区内的新活力商办综合体,带动片区品质的提升和整体的发展。